Home
Chain Sprockets
Chains
Role-chains
Double Pitch Rollchains
Leaf Chains
Hollow-pin-chains
Bush Chain
Galle Chains
>
Conveyor Chain
Special-chains
Job Order Production
Technology
Contact
Imprint
What can we do for you?
Contact us
+49 21 61 - 575 43 40
+49 21 61 - 575 43 41
info@ket
TEC
.de
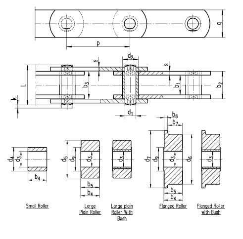
Conveyor Chain - Solid Pins style "M" - DIN 8167 - (March 1986)
Download
the drawing with measurements as PDF.